(有)健光住宅メニュー 
     「メインメニュー」 「土地物件」 「中古物件」 「借家・アパート」 「競売物件代行」 「会社概要」 「資料請求」

  箭坪中古別荘(定住可)
   
 価格:980万円 取引形態:仲介
所在  栃木県那須塩原市箭坪690−●●
公簿面積
 土地:    251u (75.92坪)
 建物:  82.14u (24.8坪)
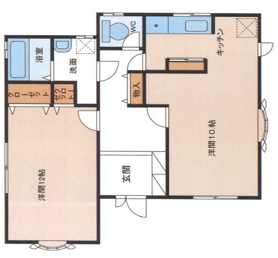
間取  建物図面はこちらから
接面道路  南西側 巾4.2m 舗装 (42条1項3号)
設備  
 電気:東京電力  水道:公営水道 ガス:プロパンガス(給湯)
                    
 排水:個別浄化槽  その他排水:浸透式

 年間管理費:管理費等はかかりません。

建物構造  軽量鉄骨造スレートぶき平家建
築年月  平成4年月日不詳
戸田交差点【コンビニ/スーパー】のある県道より700m程北へ入った,1LDKの大和ハウス施工の堅固な軽量鉄骨造の住宅です。近辺,別荘・定住者30棟ある人気エリアです。
建物の間取りは1LDKの2部屋,共に10帖以上あり,広々とした空間。
リビングにはタイル貼りのサンルームが接続され,洗濯物も天気に左右されません。
簡易階段をつかって、屋根裏収納もございます。駐車スペースは2台可能(縦列)・大きな物置付。
公営水道で管理費のかからない安心物件。

外観・庭
室内1F(リビング・サンルーム・洗面・風呂)
室内1F(主寝室)
リビングからの屋根
広々玄関・その他
                           
                           中古物件一覧に戻る中古物件一覧に戻る