(有)健光住宅メニュー 
     「メインメニュー」 「土地物件」 「中古物件」 「借家・アパート」 「競売物件代行」 「会社概要」 「資料請求」

 トーカン菜園付中古住宅
    
価格:990万円  取引形態:仲介
所在  那須郡那須町大字豊原乙字沼尻1−●●●●
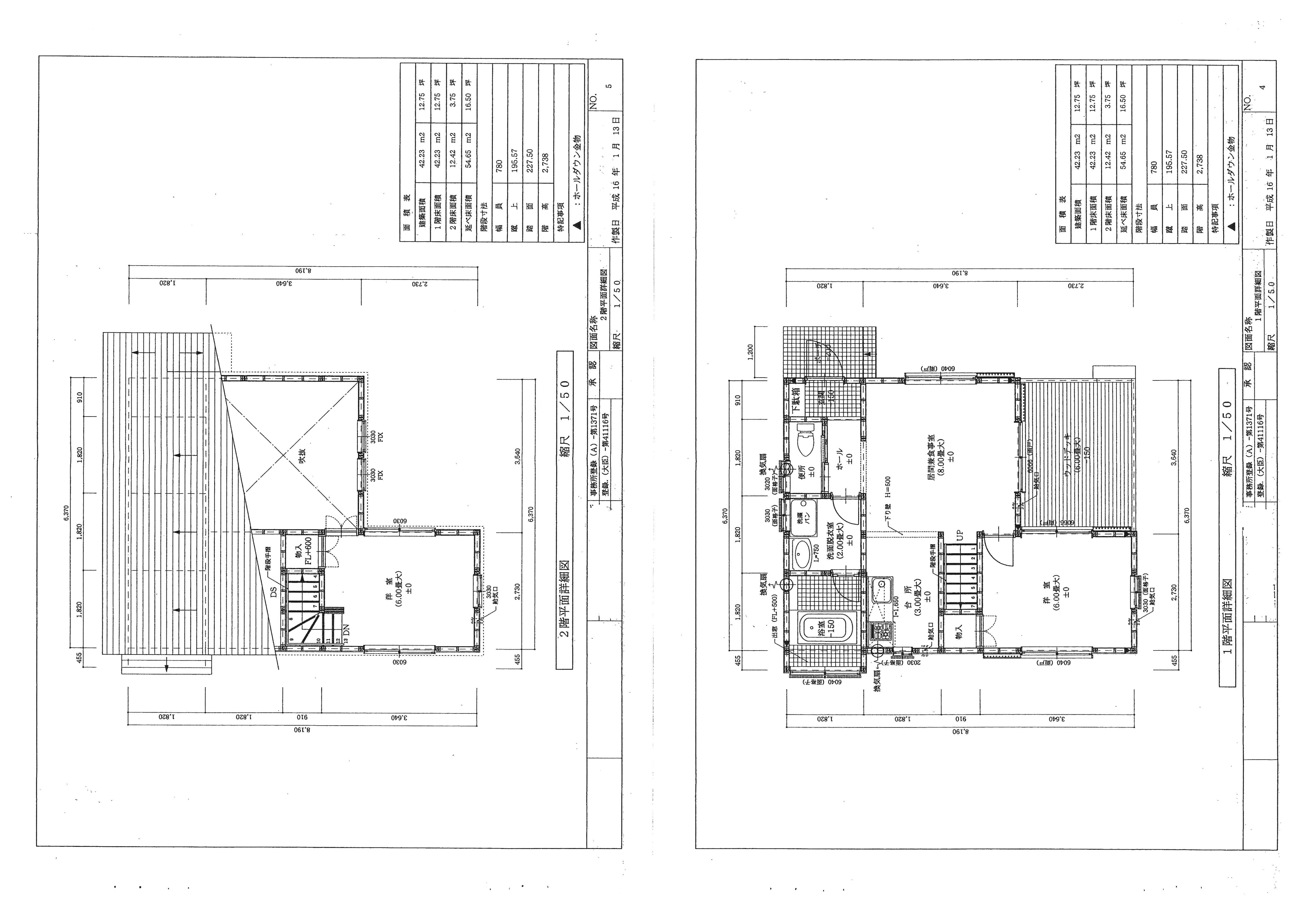
実測面積  土地:411u(124.32坪)  建物:54.65u(16.5坪)
間取り  2LDK  建物図面はこちらから
接面道路  南側 約4m 舗装 / 西側 約4m 舗装
設備  
 電気:東京電力   ガス:プロパンガス  水道:私設水道

 トイレ排水:合併浄化槽  その他排水:合併浄化槽

 管理費:28,280円(水道代込)

建物構造  木造亜鉛メッキ鋼板葺2階建
築年数  平成16年4月
国道4号線からすぐの「トーカン別荘地」。白河インターまで車で約15分と、那須・白河共に楽しめる立地です。
土地は南西の角地にあり日当たり良く、充分な菜園スペースが確保されています。
建物は2LDK。リビングは吹抜で開放感があり、ウッドデッキとの導線が良いので、テーブルや椅子を置いてお茶タイムなどゆったり過ごす事ができます。
管理費も良心的で、定住・別荘共に適します。
ウォシュレット・エアコン・洗面台(鏡付)・ガスコンロ・浴室用給湯器・カーテンを新品にしてあるのも嬉しい。

資料請求,案内のご予約等はこちらからお申し込みください★
外観・庭
室内1F
室内2F(吹き抜け)
                           
                           中古物件一覧に戻る中古物件一覧に戻る