(有)健光住宅メニュー 
     「メインメニュー」 「土地物件」 「中古物件」 「借家・アパート」 「競売物件代行」 「会社概要」 「資料請求」

  黒田原北中古住宅 ★商談中★
  価格:1,400万円 取引形態:仲介
所在  那須郡那須町大字豊原甲字神ノ前1419−●●
公簿面積
 土地:640u    (193坪) 
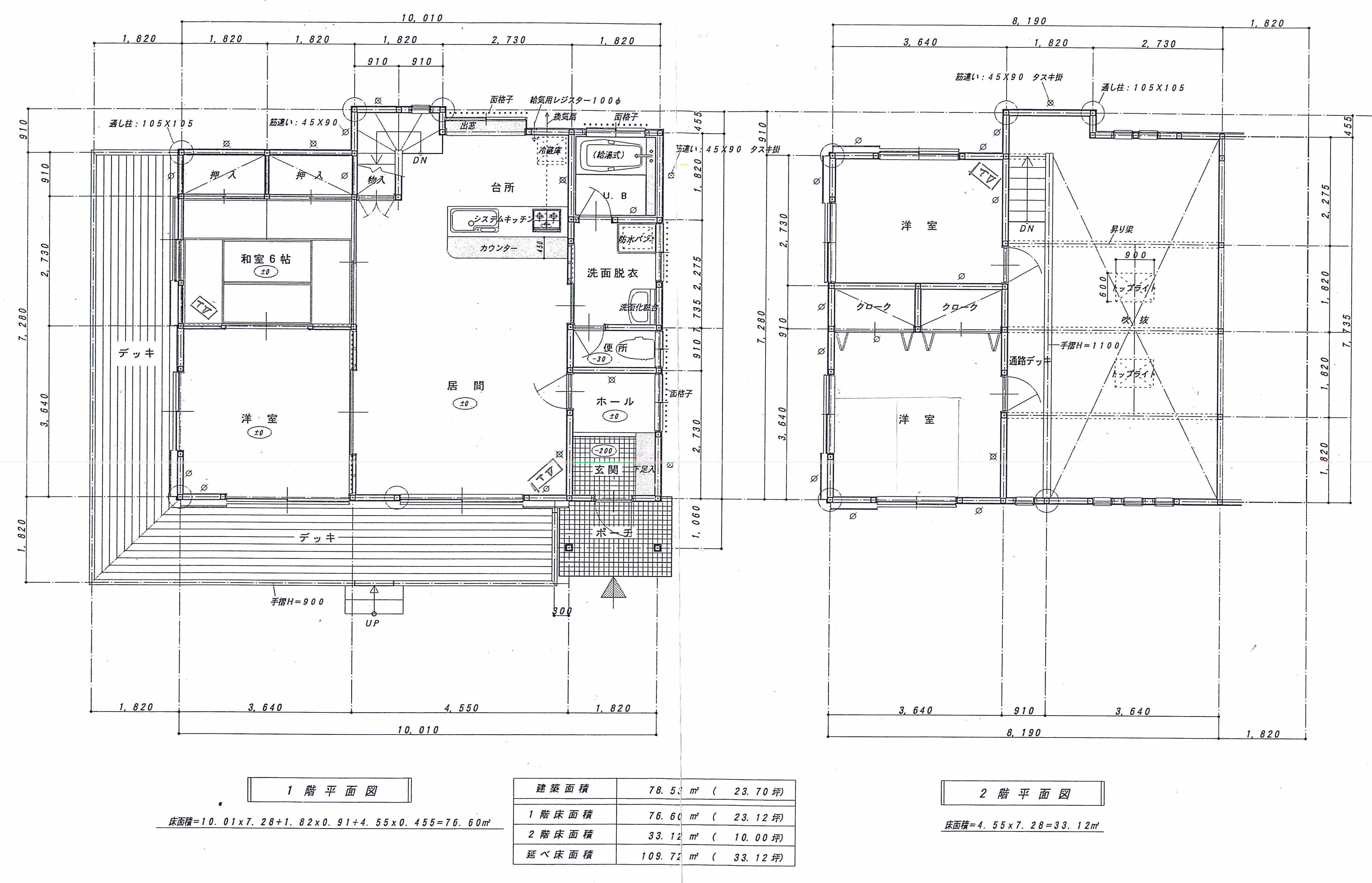
 建物:103.08u (31.18坪)
間取  建物図面はこちらから
接面道路  北側 巾6m 舗装 (公道)
 東側 巾4m 舗装 (公道)
設備  
 電気:東京電力  水道:公営水道  ガス:プロパンガス

 トイレ排水:個別浄化槽  雑俳水:地下浸透式

 管理費:管理費はかかりません

建物構造  木造亜鉛メッキ鋼板葺2階建
築年月  平成10年10月27日新築
黒田原駅から車で約5分程北へ向かう,立木の中。とても整備された敷地は芝スペース・菜園スペースがあり,ブルーベリー用の鳥よけハウスも見事。
建物は4LDK。天窓のある吹抜リビングは対面キッチンで約20帖,家の周りをウッドデッキが囲んであるのも魅力。屋根・外壁・ウッドデッキの塗装を2年前に実施。家具付物件となります。
ガス給湯器も交換したばかりです。非常に綺麗な建物ですので,是非ご期待ください。
公営水道で管理費のかからない安心物件。

黒田原駅近くには市役所/コンビニ/スーパー/薬局等ございます。
生活しやすい環境です。
外観・庭
1階(リビング)
1階(洋室・和室)
1階お風呂・洗面所
2F
2F
                           
                           中古物件一覧に戻る中古物件一覧に戻る